Sprzedam mieszkanie Sosnowiec- Zagórze ul. Mielecka
Sosnowiec / Zagórze Pokaż na mapie ›
Odświeżone: Środa, 11 Luty, 2026 21:13
333 000 zł
5550 zł/m2
Szczegóły ogłoszenia
- Kategoria: Mieszkania / Sprzedaż
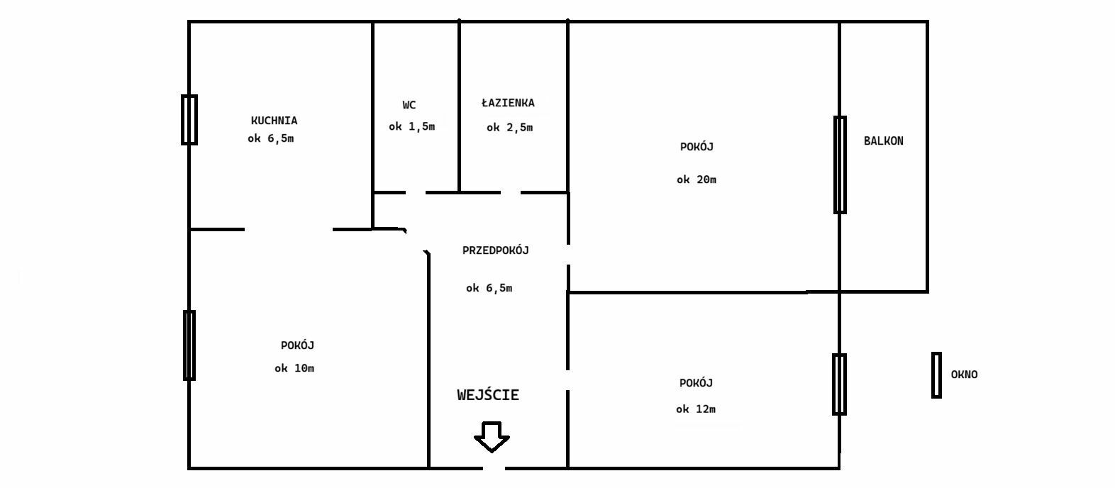
- Powierzchnia:60 m2
- Liczba pokoi:3 pokoje
- Zabudowa:Blok
- Tech. budowy:Wielka Płyta
- Piętro :4 piętro
- Liczba pięter:4 piętra
- Rynek:Wtórny
- Rok budowy:1978
- Stan:Do odświeżenia
- Forma kuchni:Oddzielna
- Sprzedaż:Bez pośredników
- Inf. dodatkowe:Balkon, Piwnica
- Cena: 333 000 zł / 5550 zł/m2
- Ulica: Mielecka
Opis oferty
Na sprzedaż posiadam 3 pokojowe mieszkanie.Oferujemy na sprzedaż bez pośredników przestronne i słoneczne mieszkanie zlokalizowane w budynku 4 piętrowym na 4 piętrze, spokojna dzielnica Sosnowca - Zagórze ul. Mielecka, przy ogródkach działkowych. W pobliżu sklepy, szkoła, przedszkole, plac zabaw dla dzieci- widoczny z okna. Idealne dla rodziny, pary lub jako inwestycja.
Ideale miejsce dla osób ceniących ciszę, świeże powietrze i przyrodę.
Mieszkanie dwustronne z pięknym widokiem na góry.
Szczegóły nieruchomości:
Powierzchnia użytkowa: 59,70 m2
Układ pomieszczeń: 3 pokoje, widna kuchnia, łazienka, WC
Do mieszkania przynależy piwnica o powierzchni ok.5m2, zapewniająca dodatkową przestrzeń do przechowywania.
Stan techniczny: Mieszkanie wymaga odświeżenia, instalacja elektryczna oraz wodno-ściekowa po wymianie, okna plastikowe, domofon, ogrzewanie i ciepła woda z sieci.
Funkcjonalny układ pomieszczeń częściowo umeblowany, z potencjałem aranżacyjnym.
Przy bloku przystanek komunikacji miejskiej i tramwajowej.
Lokal stanowi odrębną własność z księgą wieczystą (bez obciążeń)
Klatka schodowa z domofonem.
Mieszkanie wolne od stycznia 2027r
Cena do negocjacji
Telefon kontaktowy: 664
202
055
Sprawdź zainteresowanie tym ogłoszeniem
Wyświetlenia
Data dodania
Ostatnio widziany
Obserwujących
Wysłane zapytania
Odsłony telefonu
Powiadom o podobnych ogłoszeniach
Lokalizacja: Sosnowiec
Kategoria: Nieruchomości » Mieszkania » Sprzedaż
Cena: od 283000 zł do 383000 zł Powierzchnia : od 51 m2 do 69 m2
Chcę otrzymywać powiadomienia o nowych ofertach
Kamil
Konto prywatne
Na Lento.pl od 17 wrz 2013
Odpowiada szybko
Strona użytkownika
- Wypromuj ogłoszenie
- Zgłoś naruszenie
- Drukuj ulotkę
- Edytuj/usuń ogłoszenie
- Udostępnij ogłoszenie
- Dodaj na Facebook






















